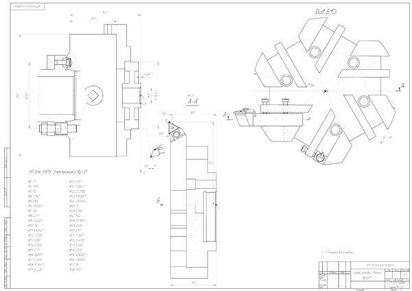
Для обеспечения эффективной подготовки станка с числовым программным управлением (ЧПУ) к выполнению конкретных задач необходимо строго соблюдать установленные процедуры. Данные процедуры направлены на ускорение процесса настройки оборудования и упрощение адаптации новых сотрудников к работе с ним. Применение стандартизированных методик позволяет оперативно перенастраивать станки для выполнения различных задач, что способствует оптимизации временных и ресурсных затрат.

